• 8 Пассажиры
  • 3 Экипаж
  • 4 Кают
  • 8 Спальное место
Длина
20,46 м / 67,13 фут
Ширина
9,87 м / 32,38 фут
Осадка
1,70 м / 5,58 фут
Топливо
1 050 литров
Пресная вода
1 400 литров

Fountaine Pajot Alegria 67 – многопалубный парусный катамаран с флайбриджем и дополнительными силовыми установками. В интерьер судна, созданного по проекту архитекторов из Berret Racoupeau Yachts Design, могут вноситься изменения по желанию заказчиков. Предусмотрена возможность установки опционного оборудования.

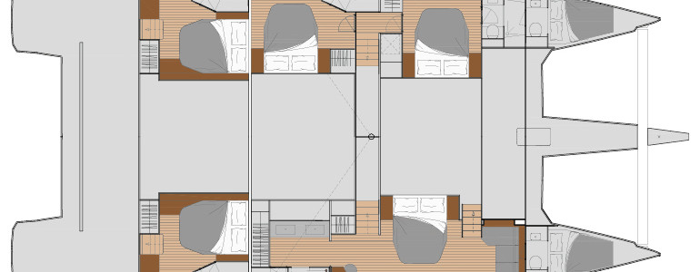
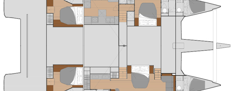
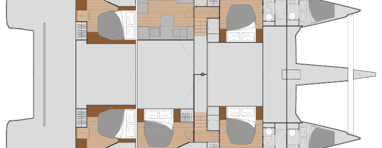
На флайбридже с хардтопом установлен пост управления со сконцентрированным в одном месте такелажем и электрическими лебедками. Здесь же организована зона отдыха с диванами, лежаками, подушками. На средней палубе остекленный закрытый салон с основным постом управления и обеденной зоной на 8 человек. Она образуется угловыми диванами, столом и дополняется камбузом. Кухня укомплектована СВЧ-печью, плитой, раковиной, холодильником. Установленные в салоне диваны являются трансформерами и при желании с их помощью формируются дополнительные места для отдыха. Из салона через сдвижные двери предусмотрен выход на кокпит с прямым диваном и лестницами по обеим сторонам на регулируемую по высоте купальную платформу. На носу средней палубы предусмотрена дополнительная зона отдыха с чашей бассейна (джакузи).

Нижняя жилая палуба может исполняться в индивидуальной версии с двуспальной мастер-каютой и в чартерной версии с шестью двуспальными каютами, имеющими собственные санузлы.

Fountaine Pajot Alegria 67 может эксплуатироваться на трансатлантических переходах благодаря площади парусности 133 кв.м, запасам топлива 1400 л, пресной воды 1050 л и дополнительным двигателям с суммарной мощностью в 220 л.с.

Пока что нет отзывов

Будьте первым, кто оставит отзыв

  • 2021
  • Длина 20.46 м
  • Ширина 9.87 м
  • Осадка 1.70 м
$ 34 852
за неделю
14:47 07.12.2020
  • 2022
  • Длина 20.46 м
  • Ширина 9.87 м
  • Осадка 1.70 м
$ 34 248
за неделю
13:28 15.03.2022
Fountaine Pajot Alegria 67
Афины, Греция
  • 2023
  • Длина 20.42 м
  • Ширина 9.87 м
  • Осадка 1.70 м
$ 36 599
за неделю
15:34 15.01.2023
Fountaine Pajot Alegria 67
Афины, Греция
  • 2023
  • Длина 20.43 м
  • Ширина 9.87 м
  • Осадка 1.70 м
$ 38 288
за неделю
15:36 15.01.2023
  • Длина 20.46 м
  • Ширина 9.87 м
  • Осадка 1.70 м
$ 9 632
за день
12:57 16.08.2022
  • Длина 20.46 м
  • Ширина 9.87 м
  • Осадка 1.70 м
$ 5 768
за день
15:26 01.11.2021
  • 2021
  • Длина 20.15 м
  • Ширина 9.84 м
  • Осадка 1.74 м
$ 3 308 698
10:48 30.01.2023
Fountaine Pajot Alegria 67
Афины, Греция
  • 2022
  • Длина 20.42 м
  • Ширина 1.73 м
  • Осадка 9.80 м
$ 34 347
за неделю
16:49 26.10.2022
  • 2022
  • Длина 20.36 м
  • Ширина 9.84 м
  • Осадка 1.75 м
$ 44 820
за неделю
01:28 08.04.2022
Fountaine Pajot Alegria 67
Афины, Греция
  • 2019
  • Длина 20.46 м
  • Ширина 9.82 м
  • Осадка 1.70 м
$ 34 347
за неделю
15:44 25.10.2021
  • Длина 20.46 м
  • Ширина 9.87 м
  • Осадка 1.70 м
$ 4 989
за день
20:16 31.10.2021
  • Длина 20.46 м
  • Ширина 9.87 м
  • Осадка 1.70 м
$ 5 768
за день
00:19 02.11.2021
  • 2022
  • Длина 20.36 м
  • Ширина 9.84 м
  • Осадка 1.75 м
$ 42 686
за неделю
15:40 15.01.2023
  • 2019
  • Длина 20.46 м
  • Ширина 9.87 м
  • Осадка 1.70 м
$ 34 852
за неделю
00:11 01.05.2019
Fountaine Pajot Alegria 67
Афины, Греция
  • 2020
  • Длина 20.46 м
  • Ширина 9.84 м
  • Осадка 1.70 м
$ 34 347
за неделю
15:46 25.10.2021
  • Длина 20.46 м
  • Ширина 9.87 м
  • Осадка 1.70 м
$ 5 768
за день
21:21 01.11.2021
  • 2018
  • Длина 20.46 м
  • Ширина 9.87 м
  • Осадка 1.70 м
$ 34 852
за неделю
20:22 11.09.2021
  • 2020
  • Длина 20.46 м
  • Ширина 9.87 м
  • Осадка 1.70 м
$ 34 852
за неделю
01:40 03.11.2019
Fountaine Pajot Alegria 67
Афины, Греция
  • 2021
  • Длина 20.46 м
  • Ширина 9.84 м
  • Осадка 1.70 м
$ 34 347
за неделю
16:14 17.10.2021
Fountaine Pajot Alegria 67
Афины, Греция
  • 2019
  • Длина 20.46 м
  • Ширина 9.87 м
  • Осадка 1.70 м
$ 34 347
за неделю
16:14 17.10.2021

новые от $ 2 179 810

Если вы заинтересованы в Fountaine Pajot Alegria 67, свяжитесь с вашим брокером или заполните форму:
    Подождите...
    Отправляя эту форму, вы соглашаетесь с нашей Политикой конфиденциальности и использования файлов cookie