Длина
13,94 м / 45,73 фут
Ширина
7,70 м / 25,26 фут
Осадка
1,30 м / 4,27 фут
Водоизмещение
13,80 тонн
Макс. скорость
20,00 узлов
Топливо
940 литров
Пресная вода
700 литров
Canvas
52,00 m2
Материал
Стеклопластик

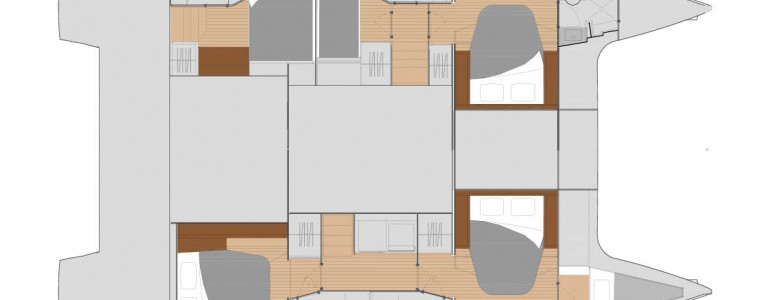
Дебют парусного катамарана Fountaine Pajot Saona 47 состоялся весной 2017 года на международном Boat Show в Дюссельдорфе. Модель, традиционно для данной верфи, была оформлена в французском стиле и с большим количество естественного освещения. Проектированием судна занималось конструкторское бюро верфи, совместно с дизайнерской компанией Berret-Racoupeau Design, дизайнером Оливье Ракупо и мастером внутреннего дизайна Изабель Ракупо. Яхта получила широкие переходы между каютами и большое количество пространства на палубах, а также стеклянную дверь в кормовой части судна, которая служит выходом на затененную террасу. Салон отделан махогонским деревом и доступен в нескольких конфигурациях и цветах на выбор заказчика.

В салоне расположен пост управления, кают компания с несколькими диванами и раскладным столиком, а также кухня с плитой, раковиной, холодильником и местом для хранения запасов продуктов. Заказчику доступна конфигурация с тремя двухместными каютами и двумя каютами экипажа с односпальной кроватью в каждой из них, или же конфигурация с четырьмя двухместными каютами, без кают для экипажа. На просторном флайбридже расположен полноценный пост управления, широкие лежаки для загара и небольшой U-образный диван. Для отдыха на Fountaine Pajot Saona 47, также предусмотрены лежаки в носовой части судна и затененная терраса на корме, прямо с которой можно пройти на откидной транец, открывающий удобный доступ к воде.

На яхте Fountaine Pajot Saona 47 установлены два дизельные двигателя от компании Volvo, каждый из которых мощностью в 60 л.с. Топливный бак рассчитан на 940 литров топлива, а резервуар для пресной воды рассчитан на 700 литров.

Модель получила классификацию A.Sea Craft и может выходить в открытый океан.

Пока что нет отзывов

Будьте первым, кто оставит отзыв

Fountaine Pajot Saona 47
Хорватия
  • Длина 13.94 м
  • Ширина 7.70 м
  • Осадка 1.30 м
$ 416
за день
14:26 01.11.2021
  • Длина 13.94 м
  • Ширина 7.70 м
  • Осадка 1.30 м
$ 1 724
за день
15:16 08.11.2021
Fountaine Pajot Saona 47
Сент-Джоржес, Гренада
  • 2019
  • Длина 13.94 м
  • Ширина 7.70 м
  • Осадка 1.30 м
$ 4 097
за неделю
12:18 16.10.2021
Fountaine Pajot Saona 47
Эирлай Бич, Австралия
  • 2020
  • Длина 13.94 м
  • Ширина 7.70 м
  • Осадка 1.30 м
$ 14 771
за неделю
12:22 18.01.2023
Fountaine Pajot Saona 47
Мармарис, Турция
  • 2020
  • Длина 13.94 м
  • Ширина 7.70 м
  • Осадка 1.20 м
$ 8 330
за неделю
22:41 16.10.2021
Fountaine Pajot Saona 47
Сент-Джоржес, Гренада
  • 2019
  • Длина 13.94 м
  • Ширина 7.70 м
  • Осадка 1.30 м
$ 4 097
за неделю
15:41 18.10.2021
  • Длина 13.94 м
  • Ширина 7.70 м
  • Осадка 1.30 м
$ 4 010
за день
01:39 18.08.2022
Fountaine Pajot Saona 47
Белиз, Белиз
  • 2017
  • Длина 13.94 м
  • Ширина 7.70 м
  • Осадка 1.30 м
$ 16 223
за неделю
13:52 18.04.2020
  • Длина 13.94 м
  • Ширина 7.70 м
  • Осадка 1.30 м
$ 1 498
за день
11:09 16.08.2022
Fountaine Pajot Saona 47
Хорватия
  • Длина 13.94 м
  • Ширина 7.70 м
  • Осадка 1.30 м
$ 694
за день
15:55 05.11.2021
Fountaine Pajot Saona 47
Мармарис, Турция
  • 2020
  • Длина 13.94 м
  • Ширина 7.70 м
  • Осадка 1.30 м
$ 9 256
за неделю
00:49 17.10.2021
Fountaine Pajot Saona 47
Хорватия
  • 2018
  • Длина 13.94 м
  • Ширина 7.70 м
  • Осадка 1.30 м
$ 3 492
за неделю
15:39 22.11.2021
Fountaine Pajot Saona 47
Пула, Хорватия
  • 2018
  • Длина 13.94 м
  • Ширина 7.70 м
  • Осадка 1.30 м
$ 3 365
за неделю
13:43 19.10.2021
Fountaine Pajot Saona 47
Хорватия
  • 2018
  • Длина 13.94 м
  • Ширина 7.70 м
  • Осадка 1.30 м
$ 4 862
за неделю
08:05 17.03.2019
  • 2019
  • Длина 14.33 м
  • Ширина 7.70 м
  • Осадка 1.30 м
$ 6 774
за неделю
12:13 29.06.2022
Fountaine Pajot Saona 47
Каламата, Греция
  • 2021
  • Длина 14.40 м
  • Ширина 7.80 м
  • Осадка 1.30 м
$ 11 442
за неделю
07:39 17.10.2021
  • 2020
  • Длина 13.99 м
  • Ширина 7.71 м
  • Осадка 1.31 м
$ 1 232 173
17:46 21.11.2022
Fountaine Pajot Saona 47
Ле-Марен, Мартиника
  • 2018
  • Длина 13.94 м
  • Ширина 7.70 м
  • Осадка 1.30 м
$ 5 689
за неделю
14:42 16.10.2021
Fountaine Pajot Saona 47
Мармарис, Турция
  • 2020
  • Длина 13.94 м
  • Ширина 7.70 м
  • Осадка 1.20 м
$ 8 417
за неделю
02:57 25.10.2021
Fountaine Pajot Saona 47
Марсала, Италия
  • 2019
  • Длина 13.94 м
  • Ширина 7.70 м
  • Осадка 1.30 м
$ 5 055
за неделю
19:35 29.11.2021

новые от $ 617 579

Если вы заинтересованы в Fountaine Pajot Saona 47, свяжитесь с вашим брокером или заполните форму:
    Подождите...
    Отправляя эту форму, вы соглашаетесь с нашей Политикой конфиденциальности и использования файлов cookie