#635036
Ukraine

Custom Built 59 for rent

Name of boat
Olga
Show more Show less
 

Description

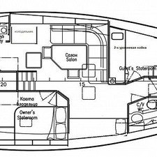
3-cabin sailing yacht Custom Built 59 - Olga was built in 2014, and it is docked in Morvokzal, Ukraine.

Olga is suitable for up to 10 people for a daily charter. Pillows and blankets are included in the price.

Sailing yacht Olga offers 2 toilets.

Boat equipment features rolling mainsail, generator, bimini and bow thruster. It also boasts a flat screen tv, an audio system and inside speakers. The fully-equipped galley includes a freezer, coffee machine, cooker, sink and kitchen utensils.

This sailing yacht is operated by the charter company Rentflot.

Equipment

  • Other
    • Outside shower
    • Kitchen utensils
    • Pillows and blankets
    • Cooker
    • Audio System
    • Flat screen TV
  • Kitchen
    • Freezer
    • Refrigerator
    • Sink
  • Amenities
    • Generator
    • Bimini
  • Facilities
    • Bow thruster
  • Outdoor equipment
    • Teak deck
  • Energy on board
    • Coffee machine
  • Yacht equipment
    • Dinghy
  • Navigation
    • Outside GPS plotter
  • Additional equipment
    • Inside speakers
  • Navigation and safety
    • Rolling mainsail
Show more Show less
194 (+2)
from $ 969 / per day
Book
Custom Built 59 for rent

Broker/dealer information

Choose your booking dates

    Loading...
    Added: 22:26 30.10.2021
    Updated: 22:31 21.09.2022

    Source

    There are no reviews yet

    Be the first to write a review